Топка ПТЛ-РПК-2-1,8/2,135 в Новосибирске

Топка ПТЛ-РПК-2-1800/2135 с ленточными питателями топлива и статичной решеткой с поворотными колосниками. Работает в паре с водогрейными котлами для сжигания каменных и бурых углей.

Цена:
Цена не указана
Количество:
Отправляя свои личные данные через формы на сайте, Вы даёте своё согласие на обработку персональных данных согласно Федеральному закону №152-ФЗ «О персональных данных» от 27.07.2006 г. в редакции от 01.07.2017.

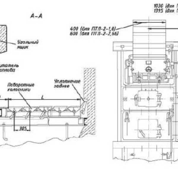
Устройство и принцип работы топка ПТЛ-РПК-2-1800/2135

Топки ПТЛ-РПК-2-1800/2135 с ленточным питателем топлива предназначены для непрерывной подачи топлива на колосниковую решетку паровых и водогрейных котлов. Состоят из угольного бункера с заслонкой для дозирования топлива, и пластинчатого транспортера. Скорость задается импульсивным вариатором, и влияет на производительность. На силу заброса топлива влияет частота вращения ротора, который работает от привода. Привод состоит из электродвигателя, импульсного вариатора, ременных и цепных передач.

Условное обозначение

Топка ПТЛ-РПК-2-1800/2135, где:

  • П – питатель;
  • Т – топлива;
  • Л – ленточный;
  • Р – решетка;
  • П – с поворотными;
  • К – колосниками.
  • 2 — количество питателей;
  • 1800 — ширина колосниковой решетки, мм;
  • 2135 — длина колосниковой решетки, мм.

Монтаж топки ПТЛ-РПК-2-1800/2135

Топка ПТЛ-РПК-2-1800/2135 поставляется в полной комплектации, в которую входят: решетка колосниковая, фронт, составные и монтажные детали топки, питатель топлива ПТЛ. Устанавливается на предварительно выровненную поверхность без необходимости в строительстве специального фундамента. Крепится к поверхности при помощи анкерных болтов.

Монтаж котельного оборудования производится с соблюдением СНиП 11-35-76 «Котельные установки» и «Правил устройства и безопасной эксплуатации паровых и водогрейных котлов».

Характеристики
Серия: ПТЛ-РПК
Вид топлива: Бурый угольКаменный угольАнтрацит
Диапазон изменения нагрузки: 25-100 %
Коэффициент избытка воздуха за топкой, не более: 1,4-1,7
Потери тепла от химического недожега, не более: 2 %
Потери тепла от механического недожега: 13,5 %
Влажность топлива, не более: 40 %
Зольность топлива, не более: 35 %
Содержание мелочи (0-6 мм), не более: 60 %
Максимальный размер куска: 40 мм
Ширина колосниковой решетки: 1800 мм
Длина колосниковой решетки: 2135 мм
Активная площадь колосниковой решетки: 3,84 м²
Ширина секций: 900 мм
Ширина забрасывателя: 400 мм
Габаритные размеры: 3700х2060х2600 мм
Масса: 3270 кг
Вид топки: Полумеханическая
Схемы

Города поставок

Москва
Пн-Пт 09:00 - 18:00
Сб 09:00 - 17:00
Карачаево-Черкесская Республика
Пн-Пт 09:00 - 18:00
Сб 09:00 - 17:00
Екатеринбург
Пн-Пт 09:00 - 18:00
Сб 09:00 - 17:00

Совершите покупку за 4 шага

Шаг 1
Выберите товары из каталога
Шаг 2
Поместите нужные вам товары в корзины
Шаг 3
Укажите свои контактные данные в форме обратной связи
Шаг 5
Ожидайте звонка от менеджера для оформления покупки

Похожие товары

Топки ТШПМ
Топки ТШПМ
Цена от 0 руб.
Топки ТЧЗМ
Топки ТЧЗМ
Цена от 0 руб.
Топки ТЛПХ
Топки ТЛПХ
Цена от 0 руб.
Вы смотрели эти товары
Топки котлов
Топка ПТЛ-РПК-2-1800/2135 с ленточными питателями топлива и статичной решеткой с поворотными колосниками. Работает в паре с водогрейными котлами для сжигания каменных и бурых углей.
Комплексон-7
Автоматическая система дозирования реагентов «Комплексон-7» Ду 100 V 5 является установкой химической подготовки воды с целью обеспечения защиты теплоэнергетического оборудования, сетей оборотного и горячего водоснабжения от коррозии и накипи. Установка широко применяется в котельных, тепловых пунктах, компрессорных и других системах.
Комплексон-6 (H)
Система водоподготовки «Комплексон-6» (Н-5) — это автоматический комплекс дозирования химических реагентов для качественной обработки воды. Современная водоподготовка позволяет обрабатывать подпиточные воды специально разработанными ингибиторами отложений (солей магния, кальция), ингибиторами коррозии для универсальных систем теплоснабжения, подачи горячей воды, водооборотных циклов.